Project Nearby
Real Estate
Condominium
The Line Jatujak-Mochit
Privilege
See All
Loading..
-
ใกล้ BTS
Keywords 1, Keywords 2, Keywords 3
Project Description
Starting price
5,100,000 Baht
($159,375)
Update
01 May 2015
Completion Year
08 Sep 2017
Project Name
The Line Jatujak-Mochit
Project type
Condominium
Developed by
บจก.บีทีเอส แสนสิริ โฮลดิ้ง วัน
Land area
Facilities
-
กล้องวงจรปิด
-
บริการสัญญาณ wifi พื้นที่ส่วนกลาง
-
ฟิตเนส /ห้องออกกำลังกาย
-
สระว่ายน้ำ
-
ร้านเสริมสวย
-
สวนหย่อม/ สวนสาธารณะ
-
ห้องอเนกประสงค์
Selling Point
ทำเลที่ตั้งของโครงการอยู่ในย่านจตุจักร การเดินทางสะดวก เพราะอยู่ใกล้ถนนสายหลัก ทางพิเศษ มีทั้งรถไฟฟ้าบีทีเอส และใต้ดิน ทั้งยังตั้งอยู่ตรงข้ามสวนจตุจักร ทำให้มีวิวทิวทัศน์สวยงาม และใกล้แหล่งอำนวยความสะดวกต่างๆมากมาย ทั้งศูนย์การค้า ตลาด อาคารสำนักงาน ตลอดจ
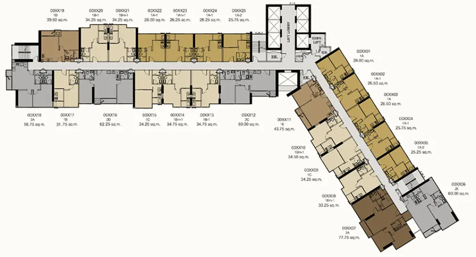
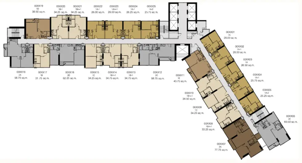
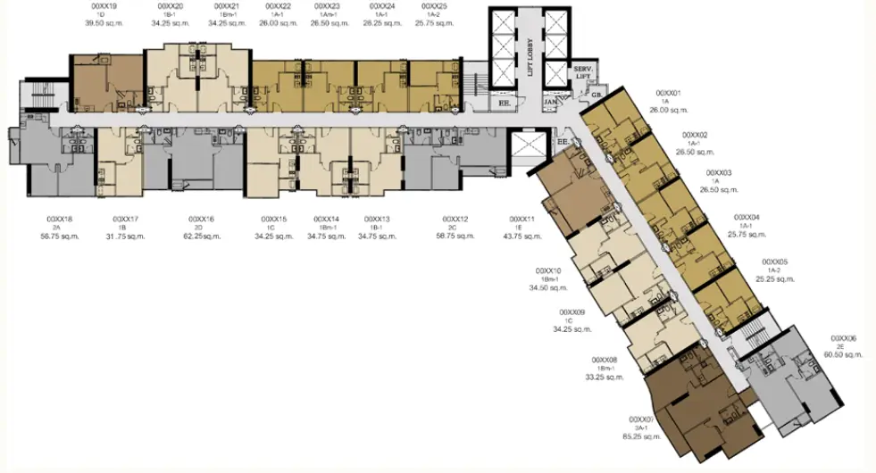
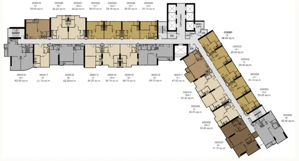
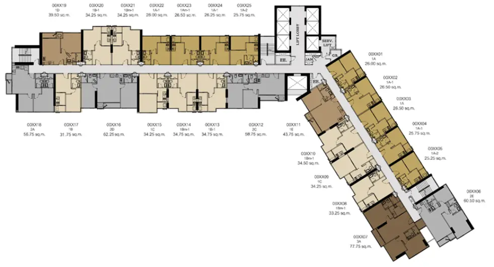
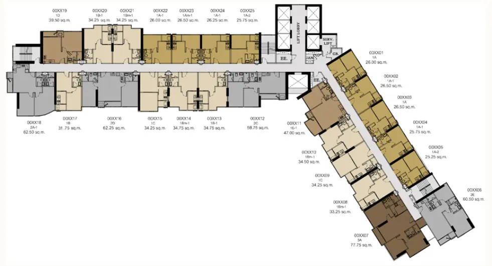
Project Details
รูปแบบโครงการที่สวยงาม หรูหรา ทันสมัย และมีการก่อสร้างทางเดิน Sky Walk เชื่อมต่อโดยตรงเข้าสู่รถไฟฟ้าบีทีเอส
Location
โครงการตั้งอยู่ติดถนนพหลโยธิน
Nearest landmark The Line Jatujak-Mochit
Calculate Property transfer tax
ราคาเฉลี่ยโครงการในทำเลใกล้เคียง
Compare with nearby projectsThe Line Jatujak-Mochit
Project Name
Property Type
Developed by
Starting price
Land area
Completion Year
Sub District
District
Province
Facilities
Comments