โครงการข้างเคียง
-
-
อัศวินคอนโดมิเนียม
ระยะทาง 0.02
-
วรรัตน์ คอนโดมิเนียม อาคาร1
ระยะทาง 0.09
-
ปริญญาเพลสอาคาร1
ระยะทาง 0.11
-
อาคารพาณิชย์ (สี่แยกปิ่นเกล้า)
ระยะทาง 0.23
-
-
ลุมพินี เพลส ปิ่นเกล้า
ระยะทาง 0.38
-
เอส.ดี.อเวนิว กรุงเทพ, โรงแรม
ระยะทาง 0.39
-
อัศวินการ์เดนท์
ระยะทาง 0.39
-
อาคารพาณิชย์ (หลังเมอรี่คิงส์ ปิ่นเกล้า)
ระยะทาง 0.41
อสังหาริมทรัพย์
ทาวน์โฮม
มาลานันท์ ปิ่นเกล้า-บรมราชชนนี-จรัญสนิทวงศ์ 45
สิทธิพิเศษ
ดูทั้งหมด
Loading..
-
ใกล้ BTS
Keywords 1, Keywords 2, Keywords 3
รายละเอียดโครงการ
ราคาเริ่มต้น
8,400,000 บาท
ณ วันที่
01 มิ.ย. 2559
ปีที่สร้างเสร็จ
-
ชื่อโครงการ
มาลานันท์ ปิ่นเกล้า-บรมราชชนนี-จรัญสนิทวงศ์ 45
ประเภท
ทาวน์เฮ้าส์/ทาวน์โฮม
ผู้พัฒนา
บจก.มาลานันท์ก่อสร้าง
ขนาดที่ดิน
2 ไร่
3 งาน
60 ตร.ว.
สิ่งอำนวยความสะดวก
จุดเด่น
อยู่ในบริเวณการพัฒนารถไฟฟ้าสายสีน้ำเงิน (ช่วงเตาปูน-ท่าพระ) ซึ่งอยู่ระหว่างการก่อสร้าง
รายละเอียดเบื้องต้น
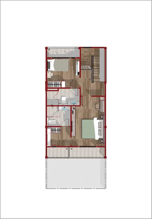
มาลานันท์ ปิ่นเกล้า-บรมราชชนนี-จรัญสนิทวงศ์ 45 เป็นโครงการขนาดใหญ่ แบบทาวน์เฮ้าส์ 3 ชั้น รวมทั้งโครงการประมาณ 32 หน่วย
รายละเอียดสถานที่
โครงการตั้งอยู่ในซอยบรมราชชนนี 5 ซึ่งสามารถเชื่อมต่อถนนบรมราชชนนีได้อย่างสะดวก
สถานที่สำคัญโดยรอบ มาลานันท์ ปิ่นเกล้า-บรมราชชนนี-จรัญสนิทวงศ์ 45
ราคาเฉลี่ยโครงการในทำเลใกล้เคียง
โครงการใกล้เคียงเปรียบเทียบมาลานันท์ ปิ่นเกล้า-บรมราชชนนี-จรัญสนิทวงศ์ 45
ชื่อโครงการ
ประเภทอสังหา
ผู้พัฒนา
ราคาเริ่มต้น
ขนาดที่ดิน
ปีที่สร้างเสร็จ
ตำบล/แขวง
อำเภอ/เขต
จังหวัด
สิ่งอำนวยความสะดวก
ความคิดเห็น